Project Nearby
Real Estate
Townhouse/Townhome
Ekkawin Lam Luk Ka-Khlong 7
Privilege
See All
Loading..
-
ใกล้ BTS
Keywords 1, Keywords 2, Keywords 3
Project Description
Starting price
1,790,000 Baht
($55,938)
Update
01 Mar 2024
Completion Year
01 Jan 1900
Project Name
Ekkawin Lam Luk Ka-Khlong 7
Project type
Townhouse/Townhome
Developed by
บ้านเอกกวิน
Land area
20 Rai
Facilities
-
พนักงานรักษาความปลอดภัย
-
กล้องวงจรปิด
-
สวนหย่อม/ สวนสาธารณะ
-
ฟิตเนส /ห้องออกกำลังกาย
-
สระว่ายน้ำ
-
ที่จอดรถ
Selling Point
// จุดเด่นของโครงการ
- ใกล้แหล่งอำนวยความสะดวก
อยู่ใกล้สถานที่สำคัญ เช่น
- ฟิวเจอร์พาร์ค รังสิต
- มหาวิทยาลัยอีสเทิร์นเอเชีย
- มหาวิทยาลัยเทคโนโลยีราชมงคลธัญบุรี
- โรงพยาบาลแพทย์รังสิต
- เดินทางสะดวก เข้า-ออกได้หลายเส้นทาง
เช่น:
- ถนนรังสิต-นครนายก
- ถนนลำลูกกา
// สถานที่ใกล้เคียง
สถานศึกษา
- ม.นอร์ทกรุงเทพ วิทยาเขตรังสิต
- ม.อีสเทิร์นเอเชีย
- ม.เทคโนโลยีราชมงคลธัญบุรี
- โรงเรียนธัญรัตน์
- โรงเรียนอนุบาลฟ้าสิรินทร์
- โรงเรียนสวนกุหลาบวิทยาลัย รังสิต
- ห้างสรรพสินค้าและศูนย์การค้า
ฟิวเจอร์พาร์ค รังสิต
- เทสโก้ โลตัส
- บิ๊กซี
- เมเจอร์ ซีนีเพล็กซ์ รังสิต
- สถานที่ราชการและหน่วยงานต่าง ๆ
ศาลจังหวัดธัญบุรี
- ที่ว่าการอำเภอธัญบุรี
- สำนักงานที่ดิน
- สถานีตำรวจ
- สวนสนุกดรีมเวิลด์
- โรงพยาบาลเอกปทุม
- โรงพยาบาลธัญบุรี
- โรงพยาบาลแพทย์รังสิต
Project Details
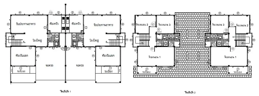
เอกกวิน ลำลูกกา-คลอง 7
บ้านแฝด 2 ชั้นสไตล์บ้านเดี่ย วและทาวน์โฮม 2 ชั้นสไตล์โมเดิร์น
ตอบโจทย์ทุกการอยู่อาศัย
ด่วนนนน!! เริ่มต้นเพียง 1.69 ล้านบาท !!
จองเพียง 999 บาทเท่านั้นนน!!
*ยื่นกู้ทันที กู้ไม่ผ่านคืนเงิน 100%*
- ทาวน์โฮม 2 ชั้น เริ่มต้นที่ 17 ตรว. หน้ากว้าง 5.5 เมตร
3 ห้องนอน 2 ห้องน้ำ (จอดรถ 2 คัน)
- บ้านแฝด 2 ชั้น เริ่มต้นที่ 36 ตรว. หน้ากว้าง 12 เมตร
3 ห้องนอน 3 ห้องน้ำ (จอดรถ 2 คัน)
Location
โครงการ เอกกวิน 3 ลำลูกกา-รังสิต คลอง 2 ตั้งอยู่บนที่ดิน 27-3-63 ไร่ เป็นโครงการบ้าแฝด 2 ชั้น ในบรรยากาศที่อบอุ่น โดยตัวบ้านเป็นบ้านแฝด 2 ชั้น 3 ห้องนอน 3 ห้องน้ำ, ห้องรับแขก, ห้องพักผ่อน, ห้องครัวแยกส่วน และส่วนรับประทานอาหาร จอดรถได้ 2 คัน
Nearest landmark Ekkawin Lam Luk Ka-Khlong 7
Calculate Property transfer tax
ราคาเฉลี่ยโครงการในทำเลใกล้เคียง
Compare with nearby projectsEkkawin Lam Luk Ka-Khlong 7
Project Name
Property Type
Developed by
Starting price
Land area
Completion Year
Sub District
District
Province
Facilities
Comments